231 m² House ∙ 4 bedrooms ∙ 14 guests | House in Silver Sands Beach with Pool

4 Bedroom House in Silver Sands Beach
Salty Beach is a 4 bedroom/4 bathroom 3-story home with a shared pool located 600 feet from the beautiful sandy beaches of Panama City Beach. This home sleeps up to 14 people, and is perfect for large families. Enjoy parking for up to 4 vehicles in the driveway, and a smaller vehicle in the garage. This home shares a backyard and pool with the same size home next door. The yard is fenced in with a fence around the pool area. You'll find plenty of Adirondack seating on the pool deck. There is a propane grill on the ground floor deck for this home (management is not responsible for replacement of propane).
Looking to get married? This spacious location is perfect for a destination wedding. With the shared yard and pool area, this location can be rented in addition to the home next door to sleep up to 27 people. This location has exclusive access to a wedding coordinator and caterer. This location is also great for large family reunions if you book the neighboring home. Interested in sleeping up to 27 people? Contact us directly and ask to book 4118 (Bad Beach) and 4120 (Salty Beach) Utes Street in Panama City Beach, FL. Both locations are professionally managed by Vacations Perfected in Panama City Beach, FL.
Floor layouts are:
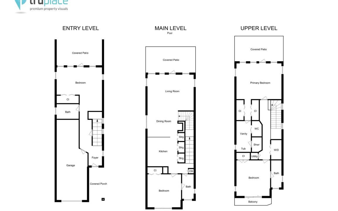
1st Floor - Bunk Room
- 1 Twin/Full Bunk + Twin Trundle
- 1 Twin/Full Bunk
- 1 Full Bathroom
2nd Floor - Living Area / King Bedroom
- Spacious Kitchen Area with Stainless Appliances and Granite Countertops (Fully Stocked with Plates/Cups/Utensils)
- 1 Queen Sleeper Sofa in Living Area with Balcony Overlooking Pool and Beach View
- 1 King Bedroom with Private Bath
3rd Floor - 2 King Suites
- 1 King Suite with Private Bathroom with Balcony Overlooking Street
- 1 King Suite with Private Bathroom (Jacuzzi Tub and Separate Stand-up Shower) with Balcony Overlooking Pool and Beach View
* ALL guests must be 25 or older unless a family with children. No spring break / college type partying.
* Absolutely no pets or smoking.
* Registered guest must complete our rental agreement which requires a credit or debit card be placed on file to protect the property against damages.
* Guests of Vacations Perfected receive free daily activities, provided by our 3rd party activity partner. 1 free adult admission per day to Ripley's Believe It or Not, Wonder Works, Escape Room 60, Gulf World Marine Park, Island Time Sunset Catamaran Cruises. Note some activities may be closed seasonally.. This is a $135/day value.
Prices and Availability
The last seen price for this House was USD $391
Amenities
Area Surrounding
Policies
- Air Conditioner
- Parking
- Pet Friendly
- Air Conditioner
- Parking
- Pool
- 1175 ft² House
- Air Conditioner
- Parking
- Pet Friendly
- Wheelchair Accessible
- Balcony/Terrace
- Accessibility
- Air Conditioner
- Parking
- Pool
- Air Conditioner
- Parking
- Pool
- Air Conditioner
- Parking
- Pool
- 1049 ft² Condo
- Air Conditioner
- Parking
- Pool
- Air Conditioner
- Parking
- Pool
- Air Conditioner
- Parking
- Pool
- Air Conditioner
- Parking
- Pool
- Air Conditioner
- Pet Friendly
- Pool
- Air Conditioner
- Parking
- Pool
- Air Conditioner
- Parking
- Pet Friendly
- Air Conditioner
- Parking
- Pool
- Air Conditioner
- Parking
- Pool