Cool and Bright Room Designed for Relaxation | House in Tallahassee

1 Bedroom House in Tallahassee
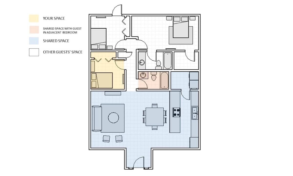
Summary:
This newly redesigned home boasts beautiful minimalist decor that creates a stunning contrast throughout every room. The white furnishings create a fresh sense of airiness while the vaulted ceilings provide ample space.
The Space:
Pour a cup of Keurig coffee and prepare breakfast in the fully stocked open kitchen overlooking the spacious dining area comfortably seating six. This home provides a roomy open concept and is full of new furnishings and collected decor.
Guest Access:
Gather for time together in the stylish living space under an eye-catching vaulted ceiling before retiring to your cozy bedroom and refreshing shared bath.
The Neighborhood:
The house is on a dead-end street in a quiet, family oriented northeast neighborhood near the heart of Tallahassee. It's a short driving distance to Florida State University, Florida A&M University, Tallahassee Memorial Hospital, Florida State Capitol, Civic Center, and Interstate 10.
Distance from Florida State University, Florida A&M University: 6.2 mi
Distance from TMH: 3.2 mi
Distance from Florida State Capitol & Downtown: 6.5 mi
Distance from Civic Center: 6.1 mi
Distance from Interstate 10: 1 mi
Distance from Publix Grocery, Shopping, & Restaurants: 1.1 mi
Getting Around:
Parking in the two space private drive way allows for easy access to the front door of our home. Free on street over flow parking is available adjacent to the property as well.
Our closest StarMetro bus stop is 1.1 miles from our home, the Greyhound Station is 5.5 miles, and the Tallahassee International Airport is 9.8 miles. Private ride share companies like Uber and Lyft are readily available in our area.
Interaction with Guests:
Less than half a mile away in their own townhome neighborhood, this husband and wife team strive to help all of their guests have an enjoyable, welcoming stay.
Cool and Bright Room Designed for Relaxation is located in Tallahassee. Cool and Bright Room Designed for Relaxation provides accommodation, featuring Balcony/Terrace, Fireplace/Heating, Child Friendly, among other amenities. This House features Balcony/Terrace, Fireplace/Heating, Child Friendly, to make your stay a comfortable one.
Cool and Bright Room Designed for Relaxation has 1 Bedroom , 1 Bathroom, and max occupancy of 2 people. The minimum rental for this property is 1 nights, but this can change depending on the season you plan on staying. Previous guests have rated it 2, and VRBO labeled it a top-rated House because of the excellent services rendered by the owner or manager of this House, and has consistently provided great experiences for their guests. Most families or guests that use it recommend it to their friends and some of them are repeat guests. House has a friendly neighborhood, and the Tallahassee has interesting places to visit. If you want to learn more about the House in Tallahassee, such as places to visit and things to do nearby, you can check below to learn more.
Amenities
Facility Overview
-
Air conditioning
-
Heating
-
Shower
-
1 bathroom
-
Hair dryer
-
Bed sheets provided
-
1 bedroom
-
Cookware/dishes/utensils
-
Coffee/tea maker
-
Oven
-
Refrigerator
-
Dishwasher
-
Microwave
-
Stovetop
-
Washing machine and dryer
-
Onsite parking options include a garage
-
No pets allowed
-
Smoke-free property
-
TV
-
Iron/ironing board
-
WiFi available
-
Garden
-
Balcony
-
Carbon monoxide detector not reported (host has not indicated whether there is a carbon monoxide detector on the property; consider bringing a portable detector)
-
Smoke detector installed (host has indicated there is a smoke detector on the property)
-
First aid kit
Policies
Extra-person charges may apply and vary depending on property policy government-issued photo identification and a credit card, debit card, or cash deposit may be required at check-in for incidental charges host has indicated there is a smoke detector on the property host has not indicated whether there is a carbon monoxide detector on the property; consider bringing a portable detector with you on the trip onsite parties or group events are strictly prohibited safety features at this property include a first aid kit special requests are subject to availability upon check-in and may incur additional charges; special requests cannot be guaranteed this property has outdoor spaces, such as balconies, patios, terraces which may not be suitable for children; if you have concerns, we recommend contacting the property prior to your arrival to confirm they can accommodate you in a suitable room this property is managed through our partner, vrbo. you will receive an email from vrbo with a link to a vrbo account, where you can change or cancel your reservation